产品规格齐全 应用广泛 可按需定制
13017606588
公司简介
企业文化
资质荣誉
厂容厂貌
羞羞视频在线观看免费观看
羞羞视频黄色视频下载
羞羞视频APP在线免费观看
提升设备
加湿机
联系方式
地图导航
在线留言
技术实力雄厚,生产团队完善,欢迎您的光临。
专注生产和经营振动工程和环保设备
大倾角皮带输送机...
皮带输送机...
三轴螺旋输送机...
...
CFU型链式输送机制作标准符合国家...
CLS型螺旋输送机是按照国家标准设...
CDJ型大倾角皮带输送机 其结...
一、应用范围 DTⅡ型带式输送机...
CMS埋刮板输送机 CMS埋刮板...
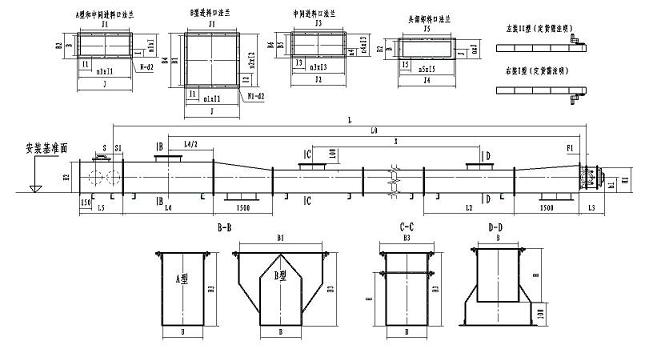
TD75型带式输送机TD75带式传...
重型板式输送机(板式给料机) 广...
案例展示
返回顶部
扫一扫 关注羞羞的视频网站入口