羞羞的视频网站入口,羞羞视频在线观看免费观看,羞羞视频黄色视频下载,羞羞视频APP在线免费观看

欢迎访问新乡县羞羞的视频网站入口机械设备有限公司官方网站!
新乡县羞羞的视频网站入口机械设备有限公司 致力于振动工程和环保设备的研发

产品规格齐全    应用广泛    可按需定制

全国服务热线(微信同号)

13017606588

加湿机

技术实力雄厚,生产团队完善,欢迎您的光临。

★ major products ★ CDJ单轴粉尘加湿机

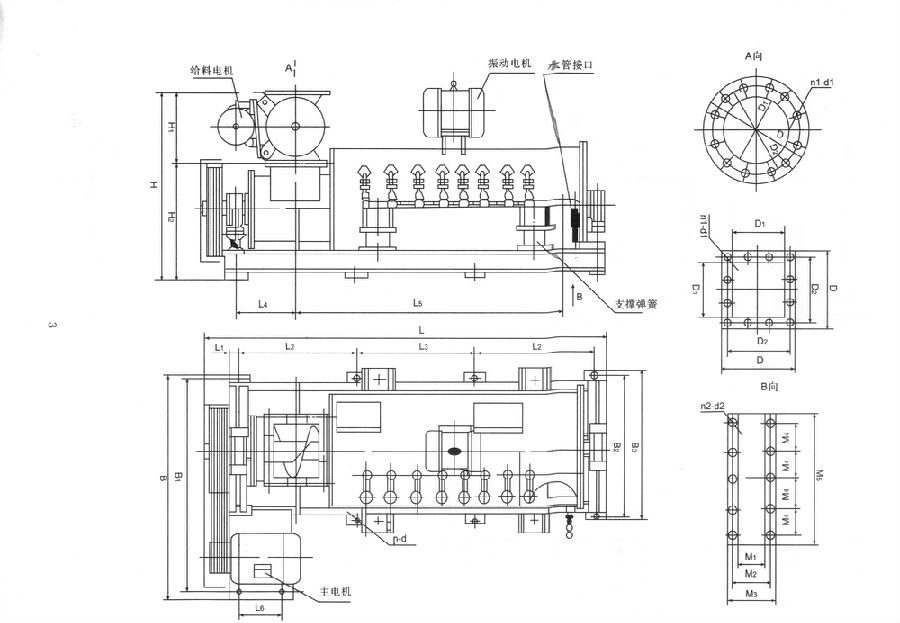
  单轴粉尘加湿机由均匀供料、叶片输料、混合机打加湿、振动系统四部分组成,配以电控和供水系统。整体固定在一个支架上,筒体...

技术完善高素质人员体系健全售后到位

description详细说明

专注生产和经营振动工程和环保设备

  单轴粉尘加湿机由均匀供料、叶片输料、混合机打加湿、振动系统四部分组成,配以电控和供水系统。整体固定在一个支架上,筒体由四组弹性元件支撑,通过激震装置,使整机在运转过程中,筒体高频震动,筒壁高频振动,筒壁与搅拌轴之间**保持一定的间隙,减小了运转阻力,杜绝了闷机、堵转现象,减小了停机清理时间,提高了工作效率。

  售后服务及其他

  1、产品保修一年,在保修期内,如出现质量问题,我厂负责修理,对于用户操作疏忽产生的损坏,仅收材料费。

  2、超过保修期的产品,如出现质量问题,我厂负责修理酌情收取工料费。

  3、我厂负责免费调试,用户指导及培训操作人员。

  4、如有特殊要求,请在订货时务必说明。

  附单轴粉尘加湿机示意图:

1

advantage 品牌优势

专注生产和经营振动工程和环保设备

  • 严选材质

    我公司产品选用高品质原材料

    注重口碑,做更好的产品

  • 多环节把控

    产品的每一个制作步骤

    都有专人把控。

  • 细节到位

    产品经得起检测机构推敲

    保证每个产品的质量。

  • 设备齐全

    公司拥有齐全的生产设备

    达数十台设备。

  • 技术雄厚

    有经验丰富的技术人才若干人

    进行产品升级及研发。

  • 售后完善

    公司拥有健全的售后服务体系

    保证售后问题能立即处理。

Online Message在线留言

专注生产和经营振动工程和环保设备

网站地图